Nieuw in verkoop:Bolsiusstraat 2, 5666 TR Geldrop - Foto
Nieuw in verkoop
+20

Bolsiusstraat 2 5666 TR Geldrop € 355.000,- k.k.

  • Woonhuis
  • 5 kamers
  • 4 slaapkamers
  • 1 badkamer
  • Bouwjaar 1954
  • 200 m² perceeloppervlakte
  • 105 m² gebruiksoppervlakte
  • E Energielabel E

Beschrijving

OMSCHRIJVING

PERFECTE WONING MET MOGELIJKHEDEN VOOR IEMAND DIE DE HANDEN UIT DE MOUWEN WIL STEKEN.
In een rustige woonstraat in “Braakhuizen Zuid” gelegen karakteristieke, uitgebouwde eindwoning met 4 slaapkamers en een diepe tuin met mogelijkheid voor een garage.

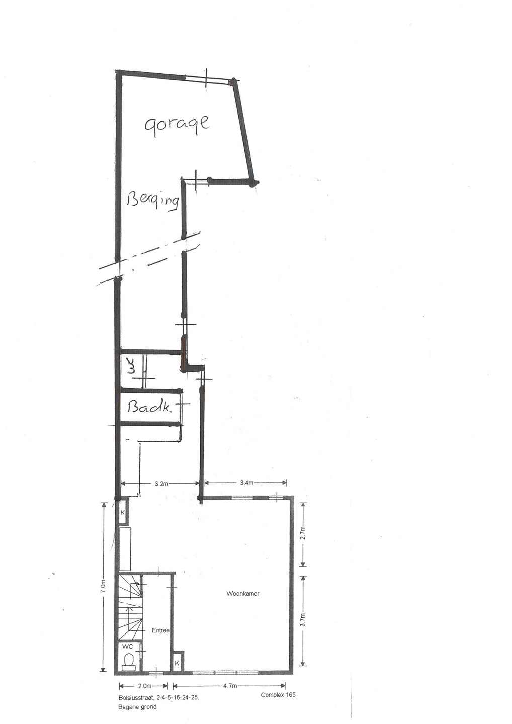
BEGANE GROND
Hal/entree met meterkast;
De wanden van de hal zijn gegranold, het plafond is afgetimmerd met schroten.
Woonkamer (ca 31 m²) met schouw;
De wanden van de woonkamer zijn afgewerkt met steenstrips en een grove structuur, het plafond is een balkenplafond.
Open keuken (ca 14 m²) met een eenvoudig hoekopgesteld keukenmeubel met gaskookplaat en afzuigkap;
Portaal met badkamer met douche en wastafel;
Bijkeuken met CV ketel, wasmachine-aansluiting en toilet;
De begane grondvloer is betegeld.

EERSTE VERDIEPING
Overloop met inbouwkast en toegang tot 4 slaapkamers.
De wanden van de overloop zijn gegranold, het plafond is afgewerkt met gipsplaten.
Slaapkamer 1 aan de achterzijde ca 2.35 x 2.39 meter (ca 5,5 m²)
Slaapkamer 2 aan de achterzijde ca 2.30 x 3.60 meter (ca 8 m²)
Slaapkamer 3 met inbouwkast aan de voorzijde ca 3.60 x 2.80 meter (ca 10 m²)
Slaapkamer 4 met inbouwkast aan de voorzijde ca 2.25 x 2.50 meter (ca 8 m²)

BUITEN
Aan te leggen achtertuin (Oost) met bestrating, planten en berging.

KENMERKEN
Bouwjaar: ca 1954
Woonoppervlakte: ca 105 m²
Overig inpandige ruimte (aangebouwde berging): ca 48 m²
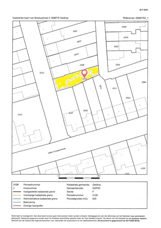
Perceel: ca 200 m²

BIJZONDERHEDEN
-Ideale starterswoning;
-Koper dient rekening te houden met kosten voor modernisering;
-Realiseren van een garage mogelijk;
-Rustig gelegen op goede woonstand;
-Grotendeels voorzien van dubbel glas;
-Aanvaarding in overleg;
-De getoonde tekeningen zijn indicatief en wellicht niet op schaal, hieraan kunnen geen rechten worden ontleend;

VERKOOP HUURWONING
Omdat het een corporatiewoning is zijn er wel enkele bijzonderheden van toepassing;
-Verkoop uitsluitend voor eigen gebruik, om dit te borgen zullen in de koopovereenkomst enkele bijzondere bepalingen worden opgenomen (oa verbod op doorverkoop, verbod op verhuur etc.);
-De “niet zelf bewoond clausule”, “ouderdomsclausule” en äsbestclausule” zullen worden opgenomen in de koopovereenkomst;
-De overdracht dient te geschieden bij Marks Wachters notarissen te Eindhoven;
-Het perceel moet nog kadastraal worden ingemeten, de kosten hiervan zijn voor de koper;
-De verkoper verlangt een waarborgsom/bankgarantie van 10% van de koopsom;

VERKOOPPROCEDURE - INFORMATIE - BOD UITBRENGEN
Om te voldoen aan de wettelijke regels dienen de biedingen te worden gedaan in een afgesloten onafhankelijke, omgeving, een zogenaamd “biedlogboek”
Via het digitaal biedlogboek kunt u een bieding uitbrengen en de voorwaarden/condities vermelden.
In dit biedlogboek kunt u ook alle relevante documenten terugvinden, die betrekking hebben op het pand, zoals o.a. het energielabel, de kadastrale info, de woningbrochure etc.
U vindt deze documenten in de 'dataroom' (nadat u bent ingelogd in het digitale biedlogboek).
Als u een bezichtiging aanvraagt krijgt u in de bevestigingsmail de link naar dit digitale biedlogboek.

Kaart

Kenmerken

Overdracht

Referentienummer
00015
Vraagprijs
€ 355.000,- k.k.
Inrichting
Niet gestoffeerd
Inrichting
Niet gemeubileerd
Status
Nieuw in verkoop
Aanvaarding
In overleg
Aangeboden sinds
Vrijdag 24 april 2026

Bouw

Type object
Woonhuis, eengezinswoning, eind woning
Soort bouw
Bestaande bouw
Bouwperiode
1954
Dakbedekking
Bitumen
Dakpannen
Type dak
Zadeldak

Oppervlaktes en inhoud

Perceeloppervlakte
200 m²
Woonoppervlakte
105 m²
Woonkameroppervlakte
31 m²
Keukenoppervlakte
14 m²
Inhoud
300 m³
Oppervlakte overige inpandige ruimten
48 m²

Indeling

Aantal bouwlagen
2
Aantal kamers
5 (waarvan 4 slaapkamers)
Aantal badkamers
1 (en 1 apart toilet)

Locatie

Ligging
Aan rustige weg
In woonwijk

Tuin

Type
Achtertuin
Oriëntering
Oosten
Heeft een achterom
Ja
Staat
Dient nog te worden aangelegd.

Energieverbruik

Energielabel
E
Energie-index
2,23

CV ketel

CV ketel
Nefit Smartline
Warmtebron
Gas
Bouwjaar
2005
Combiketel
Ja
Eigendom
Eigendom

Uitrusting

Aantal parkeerplaatsen
1
Aantal overdekte parkeerplaatsen
1
Warm water
CV-ketel
Verwarmingssysteem
Centrale verwarming
Badkamervoorzieningen
Douche
Wastafel
Parkeergelegenheid
Garage mogelijk
Tuin aanwezig
Ja
Heeft schuur/berging
Ja

Kadastrale gegevens

Kadastrale aanduiding
Geldrop F 3126
Perceeloppervlakte
200 m²
Omvang
Deel perceel
Eigendomsituatie
Eigen grond

Media

Plattegronden

Brochure(s) en overige bijlagen

Brochure Bolsiusstraat 2 Geldrop.pdf Download